Ένα ακόμη μεγάλο έργο αρχίζει να παίρνει σάρκα & οστά, και την παρούσα δημοτική Αρχή να δικαιώνεται στο σύνθημά της, ότι δεν αναλώνεται απλά σε προεκλογικές εξαγγελίες, αλλά δουλεύει πραγματικά, απρόσκοπτα και ανιδιοτελώς προς όφελος των δημοτών της..
Πρόκειται για την αναστήλωση του κτιρίου στην Πηγή, γνωστό ως «Κονάκι του Δερβέναγα», που ήταν ο τελευταίος κάτοχος του κτηρίου, ή «Κονάκι Ζαβιτσάνου» σύμφωνα με τον επίσημο χαρακτηρισμό του μνημείου από το Υπουργείο Πολιτισμού ως ιστορικό διατηρητέο μνημείο που χρειάζεται ειδική κρατική προστασία με την (ΦΕΚ 66/Β/21-2-1986 και προστατεύεται ως νεότερο μνημείο από τις διατάξεις του Ν. 3028/02) .
Για την αποκατάσταση και επανάχρηση του κτιρίου, εκπονήθηκε η μελέτη με τίτλο: «Αποκατάσταση Κονακίου Ζαβιτσιάνου – Πρόταση Επανάχρησης και αξιοποίησης σε στέγη πολιτισμού, παράδοσης & φιλοξενίας», που βρίσκεται στην κοινότητα Πηγής, Δ. Πύλης, Π.Ε. Τρικάλων, Π. Θεσσαλίας.»
Για τη σύνταξη της μελέτης αποκατάστασης πραγματοποιήθηκαν επισκέψεις στο κτίριο, από ομάδα μελετητών, η οποία προσκλήθηκε από το 2020 ακόμη, επί τούτου και την παρούσα δημοτική Αρχή, για αποτύπωση του στατικού φορέα με διερευνητικές τομές και διερεύνηση των υλικών με εργαστηριακές και επιτόπου μετρήσεις.
Η πρόταση της δημοτικής Αρχής που αφορά στην ΕΠΑΝΑΧΡΗΣΗ του ΚΤΙΡΙΟΥ « ΚΟΝΑΚΙ ΖΑΒΙΤΣΑΝΟΥ» ή “Δερβέναγα“ και αξιοποίηση του σε ΣΤΕΓΗ —ΠΟΛΙΤΙΣΜΟΥ – ΠΑΡΑΔΟΣΗΣ και ΦΙΛΟΞΕΝΙΑΣ, βασίστηκε στην 1096/8-5-2009 απόφαση της Υπηρεσίας Νεοτέρων Μνημείων & Τεχνικών Έργων Θεσσαλίας & Κεντρικής Στερεάς Ελλάδας, που αφορούσε στην αλλαγή χρήσης του κτιρίου από «Κατοικία» σε «Πολιτιστικό Κέντρο».
Η μελέτη αποκατάστασης και επανάχρησης, εγκρίθηκε από την Δ/νση Προστασίας & Αναστήλωσης Νεότερων & Σύγχρονων Μνημείων, του Υπ. Πολιτισμού, ύστερα από θετική γνωμοδότηση του Κεντρικού Αρχαιολογικού Συμβουλίου (ΚΑΣ), το οποίο εξετάζει και γνωμοδοτεί για θέματα που αφορούν στην προστασία αρχαίων μνημείων, αρχαιολογικών χώρων και ιστορικών τόπων που χρονολογούνται έως και το 1830.

Για την αποκατάσταση του κτιρίου, έχουν προβλεφθεί εργασίες κατά τις οποίες…
- Θα αποκατασταθούν οι φθορές της λίθινης τοιχοποιίας, όπου είναι αναγκαίο, εσωτερικά και εξωτερικά του κτιρίου.
- Θα γίνει ανακατασκευή των εσωτερικών τοίχων του ισογείου και του ορόφου καθώς επίσης και των ταβανιών. Τα παράθυρα θα αποκατασταθούν στην αρχική τους μορφή με παραθυρόφυλλα ξύλινα.
- Επίσης, θα αντικατασταθούν όλες οι πόρτες του κτηρίου με νέες, ίδιας μορφής. Τα πατώματα θα αποκατασταθούν στην αρχική τους μορφή και θα επενδυθούν με ξύλο.
- Επίσης θα τοποθετηθεί μεταλλικό κλιμακοστάσιο με ξύλινες βαθμίδες από το ημιυπόγειο προς το ισόγειο και τον όροφο.
- Στο ισόγειο θα δημιουργηθεί ειδική ράμπα από την νότια είσοδο για τα ΑΜΕΑ καθώς επίσης και ασανσέρ σε ειδικές διαστάσεις για πρόσβαση στο υπόγειο και τον όροφο.
- Στο υπόγειο προβλέπεται η δημιουργία αίθουσας προβολών και ενημέρωσης καθώς και η δημιουργία τριών w.c., εκ των οποίων το ένα ειδικά διαμορφωμένο για ΑΜΕΑ.
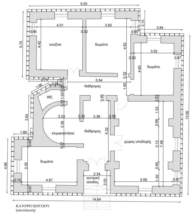
- Στο ισόγειο προβλέπεται η δημιουργία τριών χώρων έκθεσης, ενός χώρου καταστήματος και ενός χώρου καφετέριας.
- Τέλος στον όροφο προβλέπεται η δημιουργία ενός χώρου συνεδριάσεων και ξενώνα με τρία δωμάτια και καθιστικό για τους φιλοξενούμενους
Αναφορικά με τους χώρους και την χρήση τους, στο Ισόγειο θα υφίσταται χώρος μόνιμων εκθέσεων λαϊκού πολιτισμού και λαογραφίας για την μόνιμη έκθεση λαογραφικού υλικού, καθώς και χώρος υποδοχής και εξυπηρέτησης των επισκεπτών.
Επίσης χώρος θεματικής εκθέσεων, και σύγχρονης βιβλιοθήκης, που θα αποτελεί ιδανικό περιβάλλον και για τη διοργάνωση σεμιναρίων .
Θα υπάρχει χώρος αναψυκτηρίου στην ανατολική όψη του κτιρίου στον δημιουργούμενο υπαίθριο χώρο, ενώ μελλοντικά προβλέπεται & θερινός κινηματογράφος.
Τα 3 δωμάτια του Α΄ ορόφου θα διαμορφωθούν ανάλογα ώστε να προσφέρουν φιλοξενία στους καλεσμένους του Δήμου και η πρόσβαση σ’ αυτόν θα γίνεται και από τις δύο εισόδους, ενώ υπάρχει πρόβλεψη ώστε στους χώρους του ισογείου να εξασφαλίζεται η ασφάλεια των εκθεμάτων.
Στον Α΄ όροφο εκτός από τα τρία(3)δωμάτια φιλοξενίας θα υπάρχει χώρος καθιστικού , καθώς και ένας χώρος για συζήτηση η και για να προσφέρεται γεύμα η δείπνο στους φιλοξενούμενους με τοπικά προϊόντα.

Στο ΥΠΟΓΕΙΟ του κτιρίου έχει σχεδιαστεί χώρος βιωματικών προβολών – συναντήσεων ομάδων, με σκοπό την γνωριμία των επισκεπτών με τα ήθη, έθιμα και την λαϊκή τέχνη μέσα από τις εικόνες προβολής της εποχής, αλλά
Η περιπέτεια μπορεί να ξεκινάει από την οθόνη προβολών , να συνεχίζεται με ζωγραφική, δημιουργική ανάγνωση, κινητικά παιχνίδια .
Ακόμη χώροι φύλαξης αποσκευών επισκεπτών, W.C. κοινού & ΑμεΑ και χώροι εγκαταστάσεων και αποθήκευσης υλικών.
Λίγα ιστορικά στοιχεία για το αξιόλογο αυτό κτίριο…
Ο όρος κονάκι είναι τουρκικής προελεύσεως και όριζε, ένα «παλάτι», μία «μεγάλη οικία» ή, γενικότερα, έναν «τόπο διανυκτέρευσης. Είχαν ανεγερθεί από εύπορους ιδιώτες ή μέλη της αριστοκρατίας, και ήταν δυνατό, επίσης, να αποτελέσουν κατοικία διοικητικού αξιωματούχου.
Το κονάκι Ζαβιτσάνου η Δερβέναγα, βρίσκεται στην κοινότητα Πηγής του Νομού Τρικάλων, μέσα σ’ ένα αρκετά μεγάλο οικόπεδο, που βλέπει στον κεντρικό δρόμο του χωριού, και πλάι στην πλατεία.
Το 2003 το κονάκι αγοράστηκε από στο τότε Δήμο Γόμφων μαζί με την έκταση των 25 στρεμμάτων από τους τελευταίους κληρονόμους. Το κονάκι Ζαβιτσιάνου η Δερβέναγα, χρονολογείται στην τελευταία περίοδο της Τουρκοκρατίας, πριν από την απελευθέρωση της Θεσσαλίας το 1881.
Σ’ αυτό κατοίκησαν Τούρκοι, τσιφλικάδες, αλλά και οι Γερμανοί κατακτητές. Αποτελεί αξιόλογο και αντιπροσωπευτικό δείγμα αρχιτεκτονικής του 19ου αιώνα, μοναδικό στην Πηγή, απαραίτητο για την μελέτη της εξέλιξης της αρχιτεκτονικής στην περιοχή αυτή. Επίσης, αποτελεί σημείο αναφοράς συνδεδεμένο με τη μνήμη των κατοίκων της περιοχής.
